AS PROJECTS

© AS PROJECTS 2022

AS

wybór wersji lustrzanej możliwy jest po dodaniu produktu do koszyka

zobacz wersję lustrzaną projektu

kominek z dgp

wentylacja mechaniczna i kominek dgp

klimatyzacja w domu

odkurzacz centralny

projekt szamba szczelnego

ogrzewanie podłogowe

kotłownia na paliwo stałe

powietrzna pompa ciepła

gruntowa pompa ciepła

płaszcz wodny

charakterystyka energetyczna

świadectwo energetyczne

instalacja solarna

instalacja fotowoltaiczna

pakiet enrgooszczędny

wersja elektronicza projektu

dodatkowy egzemplarz projektu

dziennik budowy

tablica budowy

kosztorys inwestorski

do każdego projektu można zamówić następujące dodatki

(opcja dodania pojawi się w koszyku podczas zamawiania)

dodatki

projekt architektoniczno-budowlany

projekt techniczny

zgoda na zmiany

gratisy do każdego projektu !!!

co zawiera projekt?

opis

rzuty

dom party c / autor projektu: mg projekt

wysyłka: gratis

dostępność: 3 dni

4950 zł

cena:

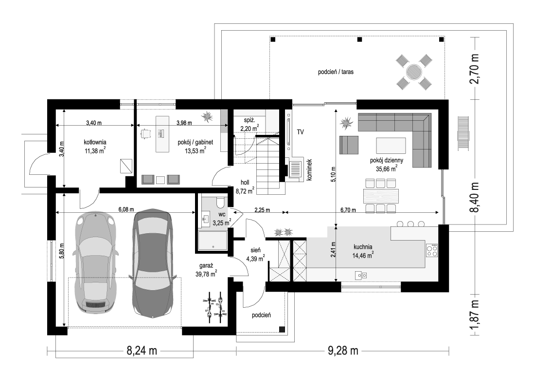
m² 169,43 dom + 39,78 m² garaż

1 kondygnacja + poddasze

4 pokoje + salon z jadalnią

2 łazienki

2 stanowiska w garażu

Powierzchnia: 169,43 m²

mg party c

AS

01 kwietnia 2022